![]()
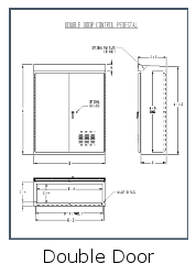
Barber Electric “Control Pedestals” are used for traffic control, lighting control, and pump control, among other uses.
Barber Electric pedestals are made from code gauge sheet metal. All seams are continuously welded and ground smooth. The standard pedestals have an open bottom with a 2” lip and 3/8” bolt clearance holes for pad mounting. The roof has a pitch to prevent water buildup. All pedestals are supplied with 3/8-16 standoff collar studs for the installation of removable steel or wood back panels.
All pedestals are provided with a heavy-duty vault handle with a provision for a padlock. Stainless steel and aluminum pedestals are supplied with a stainless steel handle. Painted steel pedestals are provided with a cast aluminum handle with a black powder coat finish. A three-point catch with roller tipped rods are supplied on all pedestals to assure a tight seal and lockup.
Painted steel pedestals are made from code gauge galvannealed steel. Stainless steel pedestals are made from code gauge 304 2b stainless steel sheet. 316 stainless steel is available on request. Aluminum pedestals are made from 5052-H32 .125 thick aluminum sheet. The standard finish for these enclosures is ANSI 61 gray polyester powder coat. Other powder coat finishes are available upon request.
Back panels need to be ordered separately.
All steel 3R painted galvanneal pedestals are provided with ventilation under the drip edge. This is not standard on stainless steel or aluminum pedestals.
Modifications include lexan windows, louvers with or without filters, fan cutouts, mounting studs for fans, and unistrut for adjustable panels. Available options also include a Corbin #2 key-lock, heaters, cooling fans and more.
For easy reference some standard pedestal sizes are listed below, but Barber Electric custom builds most pedestals to order.
PDFs (Click thumbnail to view full size):
Interactive 3D PDFs (Click thumbnails to view and interact):
Note: These PDFs are particularly large, please allow time to load.









